Bilocale in vendita

Corsico, Via Niccolò Copernico
€ 189.000
2 locali 2 locali
74 Mq 74 Mq
1 bagno 1 bagno

Bilocale in vendita

Corsico, Via Niccolò Copernico

Descrizione annuncio

CHIAMA QUESTO NUMERO PER FISSARE UNA VISITA: 0249376672

Corsico, Via Copernico:

Una delle vie più apprezzate di Corsico, grazie alla sua vicinanza a Milano in un contesto residenziale caratterizzato da tranquillità, servizi e aree verdi.

È in questo quartiere che proponiamo un bilocale in buone condizioni interne posto al nono piano con ascensore e servizio di portineria dal lunedì al sabato.

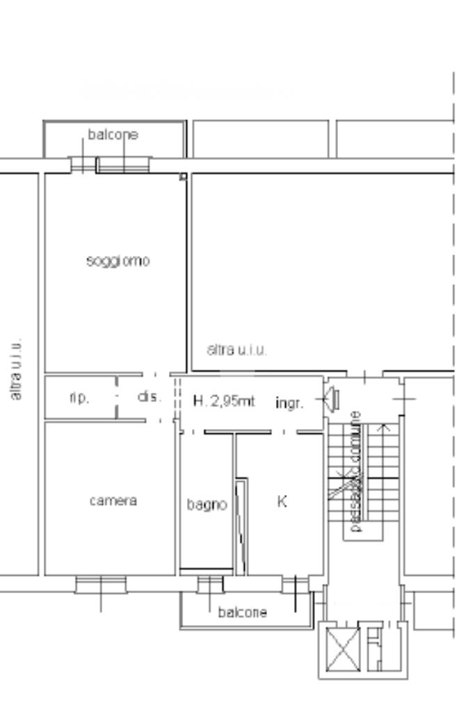
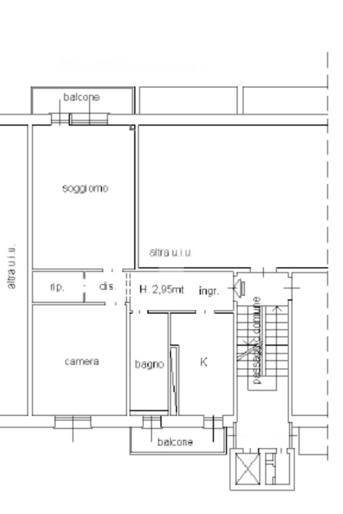
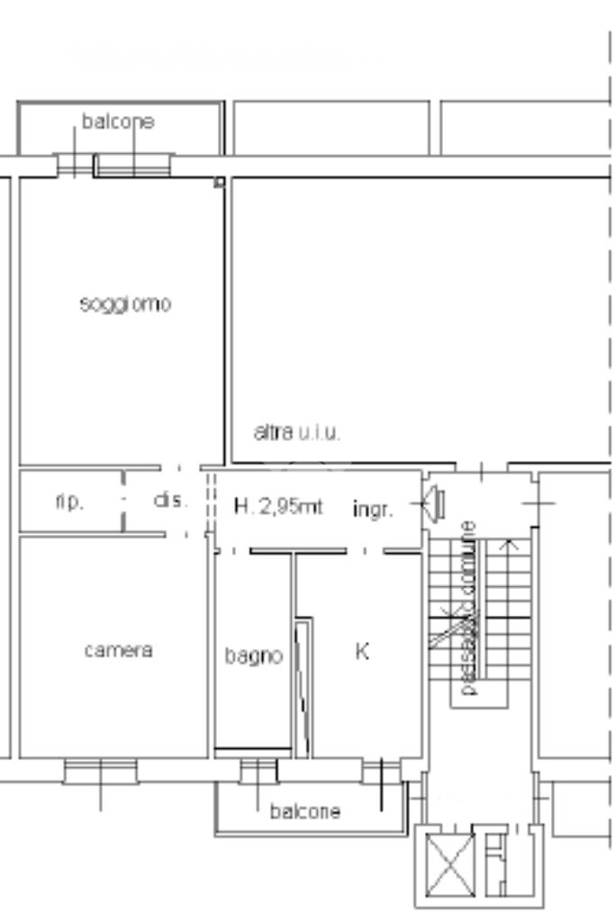
È così composto: ingresso su disimpegno, ampio soggiorno con balcone, cucina separata con secondo balcone, proseguendo troviamo un’ampia camera da letto matrimoniale e un bagno finestrato con vasca. A completare la soluzione un comodo ripostiglio e una cantina di pertinenza.

Lo stabile è stato appena ristrutturato con il bonus 110.

L’unità immobiliare si trova a ridosso dei principali mezzi di trasporto che collegano la zona con Milano come i bus 325326 che portano direttamente alla fermata della M2 Romolo e della M4 San Cristoforo, la stazione dei treni che in 12 minuti collega alla stazione di Tibaldi – Bocconi e il tram 14 che arriva direttamente al Duomo di Milano.

La presente descrizione è puramente indicativa e non rappresenta un elemento contrattuale.

Per ulteriori informazioni contattateci al numero 0249376672.

Mostra tutto

Nelle vicinanze

Trasporto pubblico Trasporto pubblico
Bisceglie
Bisceglie
2,1 Km
Inganni
Inganni
2,5 Km
Milano San Cristoforo
Milano San Cristoforo
1,8 Km
Lorenteggio
Lorenteggio
880 m
Via Gonin - Via Molinetto di Lorenteggio
Via Gonin - Via Molinetto di Lorenteggio
910 m
Ricariche auto elettriche Ricariche auto elettriche
Lidl Milano Lorenteggio
1,4 Km
Centro Commerciale La Torre - distributore IP
1,7 Km
LIDL Buccinasco
1,8 Km
EnelX EVAD Sede Enel Corsico
1,8 Km
A2A Isola Digitale Bisceglie
2,1 Km
Scuole Scuole
Scuole
80 m
Omnicomprensivo
750 m
Istituto Comprensivo Alessandrini
1,1 Km
Scuola elementare Gaetano Casati
1,5 Km
Scuola Primaria Dante Alighieri
1,5 Km
Farmacia Farmacia
Farmacia
510 m
Farmacia Spirito Santo
1,3 Km
Farmacia Trieste
1,4 Km
Farmacia Camera
1,6 Km
Farmacia Tessera
1,7 Km
Ospedali Ospedali
Casa di Cura Ambrosiana
1,9 Km
Supermercati Supermercati
Conad di via Gonin
890 m
Supermercati
900 m
coop corsico
1,0 Km
Esselunga di Buccinasco
1,1 Km
Lidl
1,4 Km
Negozi Negozi
Pancafé
520 m
Negozi
560 m
Gespan
790 m
Pane Dolci Sapori e Sfizi Fichera
860 m
Q8 Shop
920 m
Bar Bar
Downtown
750 m
King Toast Cafè
770 m
Bar
800 m
Naturalmente Gelato
1,1 Km
Mama's
1,2 Km
Ristoranti Ristoranti
Ristopizza La Coccinella
350 m
Prosciutteria dello gnocco fritto
360 m
Ristoranti
370 m
Enoteca Il Grappolo
490 m
Tocororo
710 m
Mostra tutto

Caratteristiche

Rif.:
61124388
Piano:
9 di 9 con ascensore (Piano alto)
Balconi:
2
Camere da letto:
1
Arredamento:
Assente
Condizionamento:
Autonomo
Mostra tutto
Prezzo Prezzo
€ 189.000
Rata mutuo Rata mutuo
€ 871 / mese
Spese annue Spese annue
€ 2.200
Proponi il tuo prezzoProponi il tuo prezzo

Classe Energetica

Questo immobile è esente da classe energetica
Anno di costruzione:
1970
Riscaldamento:
Centralizzato
Tipo impianto:
A radiatori
Tipo alimentazione:
Metano

Ti interessa visionare l'immobile?

Fissa un appuntamento  Fissa un appuntamento

Richiedi informazioni

* Questi campi sono obbligatori

Calcola il tuo mutuo

Semplice e senza impegno
Anticipo

( % )
Mutuo

( % )

pochi semplici passi

inserisci i tuoi dati
Questionario completato
Grazie per aver richiesto un appuntamento senza impegno con un nostro Consulente del Credito e Assicurativo.

Hai inserito correttamente tutti i dati necessari e a breve riceverai una e-mail con un link da convalidare per inviare i tuoi dati.
Affiliato
Corsico Case Srl
Via Alfieri, 3 20094 Corsico (MI)
Via Alfieri, 3 20094 Corsico (MI)
Zona: Corsico
Mostra su mappa
Orari: lun-ven 09.00-12.30 14.30-20.00 sab 09.00-12.30 12.30-18.00
Affiliato
Corsico Case Srl
Via Alfieri, 3 20094 Corsico (MI)

2025 Tecnocasa Franchising S.p.A. - P. IVA 08365160152 - Via Monte Bianco 60/A 20089 Rozzano (MI). Ogni agenzia ha un proprio titolare ed è autonoma. Privacy policy | Policy utilizzo | Cookie policy